Leased

Versatile family home in great location

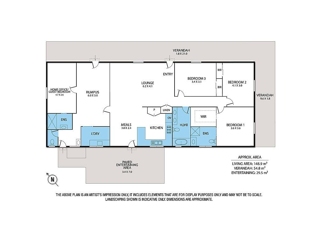
Stylish 4 bedroom, 3 bathroom contemporary family home within 15 minute walking distance to Woodend railway station, shops, schools, medical and amenities.

Enjoy recently updated kitchen and appliances, flooring throughout including carpet and timber-look floors, renovated bathrooms with heated towel rails and modern conveniences with two reverse cycle air conditioning units for year round comfort.

The flexible floor plan would also accommodate home office or studio, grandparent accommodation or a teenager retreat. There’s a large secure rear yard plus nearby parks and playgrounds.

Available 19 February 2024.

Contact Agent Kim Forsyth 0409 491 229 to arrange your private inspection today.

 

4 3 2
Available Leased
Address 38 Washington Lane, Woodend
Price UNDER APPLICATION
Property Type Rental
Property ID 1208
Category House

Agent Details

Kim Forsyth photo

Kim Forsyth

0409 491 229
View Profile